Imagine 101

Apartamente 1-2 sau mansarda, suprafete 40-60mp, Complex rezidential Comision 0

ID: P260625 Timisoara, Freidorf 1
105.000€
Descriere
PH Home Imobiliare va ofera apartamente noi de vânzare – Complex Residence Freidorf cu locuri de parcare. COMISION ZERO cumparator.

Descoperă confortul unui stil de viață modern într-un ansamblul rezidențial, situat în zona Freidorf – o locație liniștită, dar cu acces rapid către punctele de interes ale orașului.

Apartamentele sunt proiectate inteligent, cu spații luminoase și compartimentări eficiente, ideale atât pentru locuit, cât și pentru investiție. Fiecare unitate beneficiază de finisaje de calitate superioară, încălzire în pardoseală și suprafețe vitrate generoase care oferă lumină naturală pe tot parcursul zilei.

Caracteristici principale:
Compartimentări moderne (1, 2 sau mansarda)
Balcoane/terase spațioase
Locuri de parcare disponibile
Acces facil către mijloace de transport, magazine și zone comerciale
Zonă în plină dezvoltare, perfectă pentru familii sau tineri profesioniști

Alege un apartament care îmbină confortul, liniștea și accesibilitatea!
Informatii generala imobil:
- perete exterior 35 cm
- pereti portant 25 cm
- caramida 25 cm
- izolatie exterioara de facuta cu polistiren 10 cm si vata
- incalzire in pardoseala
- lift
- interfon video
- fereste Rehau

Lista de preturi.
Parter:
apartament 1, pret 105.000 euro, cu suprafata utila de 50 mp, suprafata utila si gradina totala 73.8 mp
apartament 2, pret 130.000 euro cu suprafata utila de 59.8 mp, suprafata utila si gradina totala 145.7 mp
apartament 3, pret 88.000 euro cu suprafata utila de 40.2 mp, suprafata utila si gradina totala 74.5 mp
Etajul 1
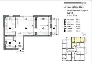
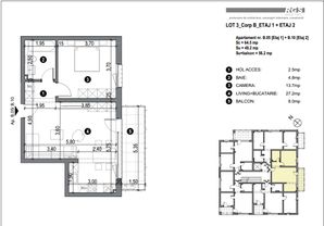
apartament 4, pret 113.000 euro cu suprafata utila de 53.7 mp, suprafata utila si balcon totala 58.8 mp
apartament 5, pret 102.000 euro cu suprafata utila de 48.2 mp, suprafata utila si balcon totala 56.2 mp
apartament 6, pret 108.000 euro cu suprafata utila de 51.3 mp, suprafata utila si balcon totala 56.9 mp
apartament 7, pret 100.000 cu suprafata utila de 47.5 mp, suprafata utila si balcon totala 57.9 mp
apartament 8, pret 108.500 euro cu suprafata utila de 51.6 mp, suprafata utila si balcon totala 57.2 mp
Etajul 2 - este identic cu etajul 1
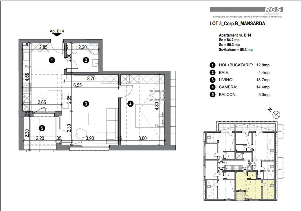
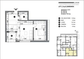
Etajul 3 - mansarda
apartament 14, pret 96.000 euro cu suprafata utila de 50.3 mp, suprafata utila si balcon totala 55.3 mp
apartament 15, pret 148.000 euro cu suprafata utila de 77.1 mp, suprafata utila si balcon totala 97.8 mp
apartament 16, pret 91.000 cu suprafata utila de 45.7 mp, suprafata utila si balcon totala 55 mp
apartament 17, pret 100.000 euro cu suprafata utila de 55.2 mp

Pentru mai multe detalii și programări la vizionare, nu ezita să ne contactezi. 0762680078 - Pavel Horea
Caracteristici
  • ID:P260625
  • Nr. camere:2
  • Nr. dormitoare:1
  • Comp.:Semidecomandat
  • Confort:1
  • Etaj:Etaj 2
  • Nr. bucatarii:1
  • Nr. bai:1
  • Nr. balcoane:1
  • An constructie:2026
  • Structura:Beton
  • Tip imobil:Bloc
  • Regim inaltime:P+2+M
Specificatii
Curent
Apa
Canalizare
Gaz
CATV
Acces internet
Fibra optica
Centrala proprie
Incalzire pardoseala
Aer conditionat
Izolatie Interior
Vopsea lavabila
Faianta
Parchet
Gresie
Ferestre PVC
Usa intrare Metal
Usa interior Celulare
Apometre
Contor gaz
Interfon
Videointerfon
Localizare
Horea Pavel
Esti interesat de aceasta proprietate ?
Proprietati similare
De vanzare Imagine 209
Apartament 2 camere, 54mp utili Zona Braytim
Timisoara, Braytim 99.490€
2 camere 1 baie 47mp
De vanzare Imagine 195
Apartament 2 camere, 57mp utili Zona Bucovina
Timisoara, Bucovina 94.990€
2 camere 1 baie 57mp
De vanzare Imagine 78
Apartament 2 camere, 47mp utili Zona.Unirii-Marasti OFERTA
Timisoara, P-ta Unirii 99.990€
2 camere 1 baie 47mp
De vanzare Imagine 40
Apartament 3 camere, 70 mp utili, Girocului/Rebreanu
Timisoara, Girocului 114.990€
3 camere 1 baie 70mp